Ål stasjon
Ål stasjon ligger på Bergensbanen. Herfra kan du ta toget i retning Bergen, Flåm og Oslo S.

Reiseinformasjon
Reiseplanlegging og billettsalg på nett
Planlegg reisen og kjøp billett på togselskapenes nettsider eller den nasjonale reiseplanleggeren Entur.
Buss
Bussforbindelser til Bergsjø, se brakar.no(åpnes i ny fane)
Parkering
Parkeringsplasser ved stasjonen: 50
Gratis parkering for togreisende. Langtidsparkering er mulig i østre ende av parkeringsplassen.
Hensatte kjøretøy kan taues bort.
Merk at det alltid er skiltingen på stedet som gjelder.
Sykkelstativ
Adkomst til plattform (HC)
WC (HC)
Alpinbakke
Stellerom
Venterom
Åpent alle dager 08:45 – 22:00 og 01:45 – 04:30.
WC
Om stasjonen
Ål stasjon åpnet i 1907 da Bergensbanen ble tatt i bruk mellom Bergen og Gulsvik.
Det er ikke billettsalg på stasjonen, de kan kjøpes i app eller på toget.
Stasjonen er bemannet av Bane NOR, kun av hensyn til trafikkavviklingen.
Togretninger
- Bergen
- Flåm
- Oslo S
Beliggenhet
- Avstand fra Oslo S: 228,21 km
- Kommune: Ål
- Strekning: Oslo S–Roa–Bergen
- Bane: Bergensbanen
- Moh: 436
Informasjon om stasjonsbygningen
- Arkitekter: Paul A. Due
- Stilart: Jugend
- Byggeår: 1907
- Stasjonen er vernet

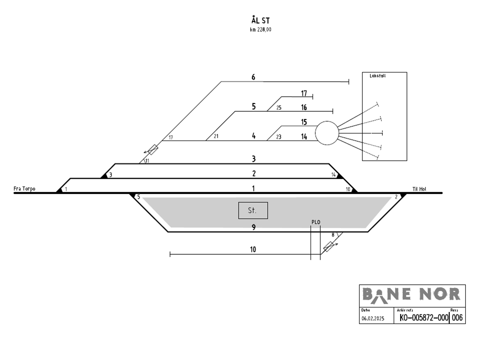
| Spor | Plattform | Merknader | ||||||
|---|---|---|---|---|---|---|---|---|
| Nr. | Type | Lengde (m) | Kryssingsspor- lengde (m) |
Forlenget (m) | Lengde (m) | Høyde (mm) | Bredde (m) | |
| 1 | Hovedtogspor | 920 | ||||||
| 1 | Hovedtogspor | 0 | 459 | 325 | 350/300 | 5 | Sideplattform. | |
| 2 | Togspor | 382 | 601 | Ingen plattform. | ||||
| 3 | Togspor | 316 | 409 | Ingen plattform. | ||||
| 5 | Buttspor | 114 | Ingen plattform. | |||||
| 6 | Buttspor | 158 | Ingen plattform. | |||||
| 9 | Togspor | 331 | 469 | 273 | 350/300 | 5 |
Sideplattform. |
|
| 10 | Buttspor | 256 | Ingen plattform. | |||||
| 14 | Øvrige spor | |||||||
| 15 | Buttspor | 150 | Ingen plattform. | |||||
| 16 | Buttspor | 150 | Ingen plattform. | |||||
| 17 | Buttspor | 32 | Ingen plattform. | |||||